Centro Media im S-Bahnhof Berlin Friedrichstraße
Centro Media im S-Bahnhof Berlin Friedrichstraße
Bearbeitung Lph. 2-3, 2002, nicht ausgeführt
Projektbeschreibung
Bauaufgabe
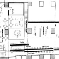
Jeden Tag passieren 150.000 Personen den Bahnhof Friedrichstraße. Im Rahmen der Sanierung und Neunutzung des Bahnhofs Friedrichstraße sollte auf 2 Ebenen (gesamt ca. 600 m2) das Centro Media entstehen, ein Medienzentrum mit Internetcafé, Shops, Radio- / Fernsehstation mit Bühne, Restaurant, Bar und Kino.
Die unterschiedlichen Funktionen sollen einerseits einzeln, andererseits als Gesamtkonzept erfahrbar sein. Dabei geht es auch besonders um die Präsentation der angebotenen Ereignisse. Demgegenüber steht eine relativ kurze Fassadenabwicklung zur Mall als Hauptzugang und die Verteilung auf zwei Geschosse.
Spektakuläres Highlight der Raumkomposition ist die die Längsrichtung des Raumes betonende Medienwand mit Screens, Internetplätzen, Informationstafeln, die durch eine gleichgerichtete Bar ergänzt wird. Die Bühne liegt im Zentrum des Grundrisses und ist von allen Seiten einsehbar, auch vom Restaurant, das an der belichteten Außenseite der Bahnhofsfassade liegt, mit externem Zugang von außen. In unmittelbarer Nähe des Mallzugangs liegen die Shops , die auch z.B. für Promotionaktionen fremd vermietet werden können. Im Untergeschoß befindet sich ein kleines Kino.













