Neue Aussichten im Holzanbau


Holzanbau an ein Wohnhaus
Funktion Erweiterung eines bestehenden Wohnhauses
Standort Hohen Neuendorf
Baukonstruktion Bestand Massivbau, Neubau Holzbau
Auftraggeber privat
Leistungsphasen 2-9
Baujahr 2020
Nutzfläche Bestand 90 m², Neubau 40 m²
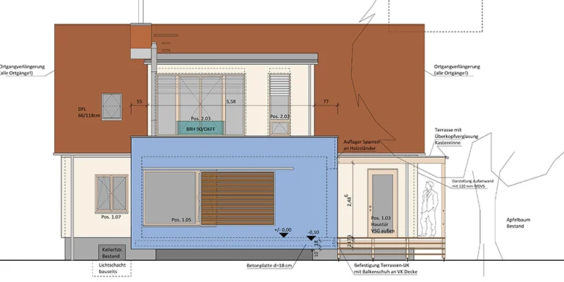
Bauaufgabe
Das Wohnhaus Bj. ca. 1930 mit steilem Satteldach sollte um einen Wohnraum mit Terrasse und Gartenzugang und gleichzeitig das Dachgeschoß und eine große Gaube erweitert werden. Eigentlich eine kleine Maßnahme, die jedoch enorme räumliche Kapazitäten für den Innenraum schafft. In das Projekt wird vom Bauherrn viel Eigenleistung investiert.
Konzept
Alt + Neu soll erkennbar bleiben- das drückt sich in unterschiedlichen Konstruktionen, Materialien und Farben aus. Es ist immer ein Balenceakt, aus einem bestehenden und einem neuen Bauteil ein gemeinsames Ganzes entstehen zu lassen, dabei aber gleichzeitig Alt + Neu erkennbar zu lassen.
Baustelle















